Tampereen taidemuseon laajennuksen ja perusparannuksen suunnittelu etenee

Tampereen taidemuseon laajennuksesta ja perusparannuksesta on laadittu havainnekuva, jossa laajennusosa on vanhan osan läheisyydessä ja ympärille jää puistoa.

Tampereen taidemuseon laajennuksen ja perusparannuksen hankesuunnitelma hyväksyttiin kaupunginhallituksen kokouksessa 2.9.2024. Hanke etenee jatkosuunnitteluun. Laajennuksen ja perusparannuksen alustava investointikustannus taidehankintoineen on noin 36,3 miljoonaa euroa, joka tarkentuu urakkalaskennassa. Rakennustyöt on suunniteltu alkamaan kesällä 2026, ja taidemuseon käyttöönotto olisi syksyllä 2029.

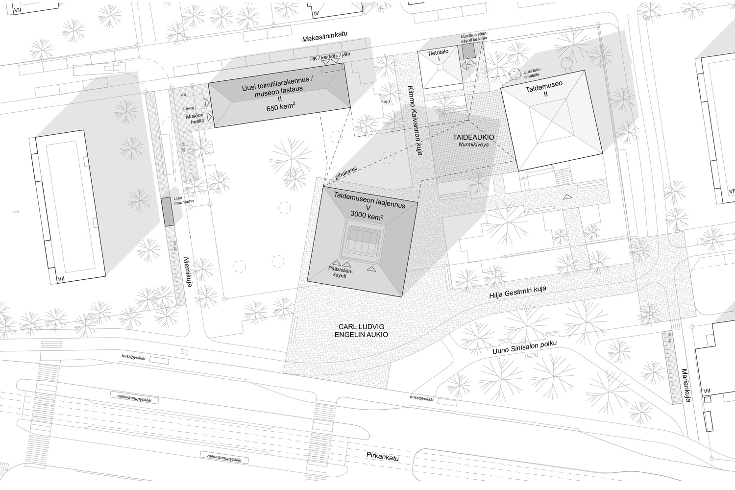
Tampereen taidemuseon laajennus tulevaisuuden taidemuseokeskukseksi tulee valmistuessaan olemaan Tampereen läntisen keskustan merkittävämpiä julkisia rakennuksia ja Pyynikin alueen vetovoimatekijä. Suunnitelman mukaan nykyinen näyttelyrakennus (Makasiini) ja toimistorakennus (entinen talonmiehenasunto) perusparannetaan, ja taidemuseota laajennetaan tontilla kahdella uudisrakennuksella (Siilo ja Paja). Rakennusten yhteenlaskettu kokonaispinta-ala on 6741 bruttoneliömetriä. Perusparannus- ja laajennusosat käsittävän taidemuseokokonaisuuden suunnitelma perustuu kansainvälisen arkkitehtuurikilpailun voittaneeseen ehdotukseen ”Siilo”. Rakennuksen suunnittelua on jatkettu voittaneen ehdotuksen laatineen AOR Arkkitehdit Oy:n kanssa.Siilo-laajennuksessa tulee sijaitsemaan taidemuseokokonaisuuden uusi pääsisäänkäynti aputiloineen, näyttelytiloja, yleisötiloja, toimisto- ja teknisiä tiloja. Uusi huolto- ja toimistorakennus Paja tulee toimimaan huolto- ja teosliikenteen logistiikkareittinä ja sisältämään toimisto-, sosiaali-, paja-, lastaus-, teknisiä ja varastotiloja sekä väestönsuojan. Uusia ja perusparannettavia rakennuksia yhdistävissä maanalaisissa tiloissa tulee sijaitsemaan näyttelytila-monitoimisali, yleisötyöpajatila, kahvila-bistro keittiötiloineen, teknisiä tiloja ja aputiloja. Vanhaan ns. talonmiehen asuntoon sijoitetaan museokauppa.Rakennusten runkomateriaali on pääosin paikalla valettu teräsbetoni, ja Pajan runko voidaan toteuttaa osin elementtirakenteisena. Julkisivut ovat pääosin paikalla muurattuja ja osin lasijulkisivuja. Siilon vesikatto on kuparipeltiä ja Pajan vesikatto maalattua sinkkipeltiä.Kuusikerroksisen laajennuksen ensimmäinen ja kolmas kerros avautuvat lasisina ympäröivään kaupunkimaisemaan. Punatiilinen laajennus muodostaa aikoinaan viljamakasiinina toimineelle olemassa olevalle museorakennukselle Tampereen historiallista teollista rakentamista tulkitsevan parin.Laajennus- ja perusparannusosat tullaan suunnittelemaan esteettömiksi sekä näyttelytoimintaa ja muita palveluita moniulotteisesti palvelevaksi taidemuseokokonaisuudeksi. Taidemuseon kortteli on kulttuurihistoriallisesti ja maisemallisesti tärkeä alue, jota koskevien muutos- ja rakennustoimenpiteiden sopeutumiseen ympäristöönsä on kiinnitettävä erityistä huomiota. Suunnitelmasta on pyydettävä lausunto museoviranomaiselta ja nykytilanne on dokumentoitava korkeatasoisesti ennen rakennus- ja kunnostustyötä ja sen aikana.

Asemapiirrokseen on aseteltu uudisrakennukset nykyisten taidemuseon rakennusten läheisyyteen.

Tampereen taidemuseon alueen asemakaava hyväksyttiin kaupunginvaltuustossa kesäkuussa, ja se mahdollistaa museon laajennuksen.
Lisätietoja

Minna Tuominen

Hankearkkitehti

Puhelin:

041 730 0384

Teksti: Raija Lindell
Kuvat: Havainnekuva, AOR Arkkitehdit Oy ja asemakaavapiirros, Tampereen kaupunki